传真:0792-8383900
地址:江西省九江市长城路121号恒盛科技园13号楼8层
三菱LEHY-2电梯的电气原理图涵盖了电梯运行的所有电气控制逻辑,包括但不限于主电路、控制电路、安全回路、信号系统、门系统、调速系统等。了解这些原理图对于电梯的安装、调试、维修和保养至关重要。
















以下是一些关于三菱LEHY-2电梯电气原理图的主要组件和功能的简要说明:
1. 主电路:这是电梯的主要电力供应线路,通常包括电源输入、主接触器、主断路器、变频器等,负责电梯的电力分配和控制。
2. 控制电路:控制电路负责电梯的所有逻辑控制,包括楼层选择、方向控制、速度控制等。这部分通常会涉及微处理器、继电器、传感器等电子元件。
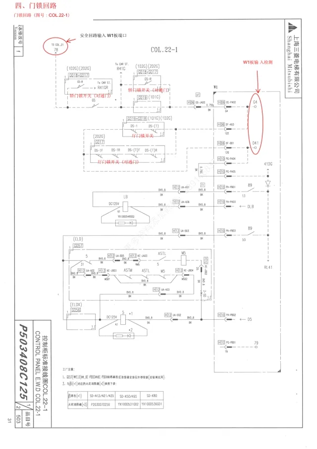
3. 安全回路:安全回路是电梯安全运行的基础,它包括了一系列的安全开关和传感器,如限位开关、急停开关、安全钳动作开关等,用于监测电梯的状态并在出现异常时切断主电源。
4. 信号系统:信号系统用于电梯内外的通信,包括呼叫按钮、楼层指示灯、门状态指示等,便于乘客了解电梯的位置和状态。
5. 门系统:门系统负责电梯门的开闭,包括门机、门锁、光电开关等部件,确保门的正常运作。
6. 调速系统:调速系统主要用于控制电梯的运行速度,包括变频器、编码器等,确保电梯运行平稳。
7. 其他辅助系统:例如通风系统、照明系统、通讯系统等也是电梯电气原理图的一部分,确保电梯环境的舒适性和安全性。
请注意,电气原理图是电梯安装和维护的重要参考资料,只有经过专业培训的技术人员才能理解和操作。如果您不是专业人士,请不要尝试自行解读或修改电气原理图,以免造成安全隐患。